E08 - Ferme horticole - LEZENNES (59)

Réhabilitation-extension d’une ferme horticole et transformation en espace polyvalent
11 rue Ferrer - 59260 Lezennes

  • MOA

    Baptiste Roussel

  • MOE

    Atelier MA - Architecte (conception)
    HPAA - Architecte (PC + AMO)

  • Programme

    Rénovation - 607.43 m²SU

  • Enveloppe

    400000 €TTC

  • Phase

    Livré - 2024

La ferme et ses dépendances ont été érigées dans le cadre d’une activité d’horticulture en serres débutée dans les années 50 et interrompue dans les années 1980, une partie de la parcelle étant alors cédée pour y construire des pavillons. Le corps de ferme et les serres attenantes ont depuis subi peu de transformations. Les éléments constructifs constituant les parois périphériques, les menuiseries, la charpente et la couverture sont anciens sans être vétustes, ce qui n’est pas le cas du second-œuvre.

Les constructions présentent des qualités architecturales d’ordre patrimonial, dans un cadre paysager exceptionnel. Une cour intérieure distribue les flux depuis la rue Ferrer et guide le visiteur jusqu’à un jardin d’une grande qualité paysagère. La qualité de cette séquence d’entrée est conservée dans le projet.

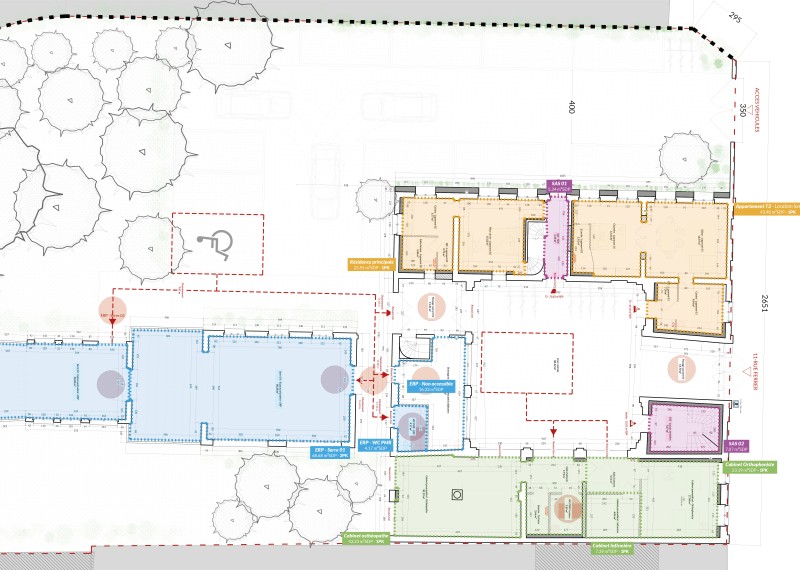
Un programme hybride et évolutif

Le projet comprend cinq axes programmatiques :

  • Le curage et la rénovation globale du bien. A cette occasion, les ailes du bâtiment sont restructurées pour consentir l’évolutivité des usages et de la bâtisse.
  • L’intégration de trois logements dont deux destinés à la location et l’autre à l’habitation principale du propriétaire.
  • L’intégration de bureaux à l’étage
  • L’intégration de trois cabinets paramédicaux (activité de service avec accueil de clientèle - ERP de type U) à rez-de-chaussée, dont un cabinet d’osthéopathie, un cabinet d’orthophonie et une infirmière.
  • L’intégration d’un espace polyvalent à vocation événementielle dans les serres et le jardin collectif, (activité de service avec accueil de clientèle, ERP type L) : séminaires, réunions familiales, événements religieux, marchés des créateurs, petites expositions et spectacles.
  • MOA

    Baptiste Roussel

  • MOE

    Atelier MA - Architecte (conception)
    HPAA - Architecte (PC + AMO)

  • Programme

    Rénovation - 607.43 m²SU

  • Enveloppe

    400000 €TTC

  • Phase

    Livré - 2024