L02 - Habiter à la poste - VIESLY (59)

Réhabilitation d’un ancien bureau de poste et transformation en logements
1 rue de la mairie - 59271 Viesly

  • MOA

    Privé

  • MOE

    HPAA - Architecte mandataire

  • Programme

    3 logements - 1T1 - 1T3 - 1T4
    194.20 m²SHAB

  • Enveloppe

    NC

  • Phase

    AVP-PC - 2024

Se dressant fièrement à l’angle de la rue de la mairie et de la rue Pasteur, le pignon caractéristique des bureaux de poste des bourgs ruraux se tient au côté d’un curieux rang d’habitations implantées en éventail, orthogonalement à la rue. Inoccupé depuis le départ de la Poste, la bâtisse a été acquise pas un couple de particuliers souhaitant y déployer un programme de trois logements.

Une hybridation désuète, et sujétions

La bâtisse est structurée et bien tramée, bien qu’ayant fait l’objet de rénovations inadéquates ayant engendré de menus désordres, notamment en termes de migration de vapeur d’eau.

Le plan est organisé conformément à l’hybridation antérieure des usages du bureau de poste, qui incluait en effet un logement de fonction. Diviser l’établissement en plusieurs logements induit donc plusieurs sujétions mal anticipées par le couple :

  • La création de colonnes pour l’approvisionnement des réseaux et d’une GTL pour chaque logement, avec son propre compteur.
  • Une distribution délicate des flux, notamment en termes d’acoustique et d’isolement aux tiers.
  • De manière générale, l’étendue des travaux, tout à fait sous-évalués par rapport aux besoins.

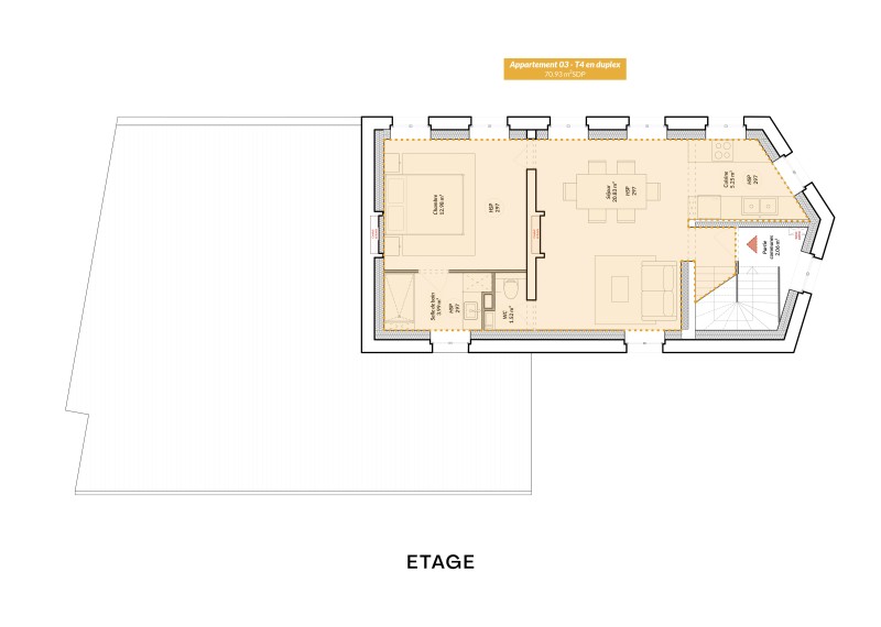
Une spatialisation évolutive

La distribution des logements est structurée autour de la cage d’escalier historique, rénovée et doublée d’une colonne pour l’acheminement des réseaux.

Un logement prend ainsi place dans l’extension (le bureau de poste proprement dit), tandis que le rez-de-chaussée du logement de fonction est scindé en un premier logement, puis un logement unique occupant l’étage et les combles. Ce dernier est organisé de telle sorte qu’il puisse être divisé ultérieurement en deux logements. Cette malléabilité du plan autorise une évolution ultérieure de la programmation, mais également une certaine latitude au cours des travaux, non suivis par la maîtrise d’œuvre.

  • MOA

    Privé

  • MOE

    HPAA - Architecte mandataire

  • Programme

    3 logements - 1T1 - 1T3 - 1T4
    194.20 m²SHAB

  • Enveloppe

    NC

  • Phase

    AVP-PC - 2024