E03 - La Tribu Du Sujet - FROMELLES (59)

Rénovation-extension d’une maison paramédicale à Fromelles
16-18 rue de l’Eglise - 59249 Fromelles

  • MOA

    SCI TDS Fromelles

  • MOE

    HPAA - Architecte mandataire
    Ekkoïa - BE ENE

  • Programme

    La Tribu Du Sujet - 273.79 m²SU
    Local commercial - 155.92 m²SU
    Terrain à bâtir - 553.98 m²SU

  • Enveloppe

    Maison paramédicale - 400000 €TTC
    Local commercial - 400000 €TTC

  • Phase

    DET - 2026

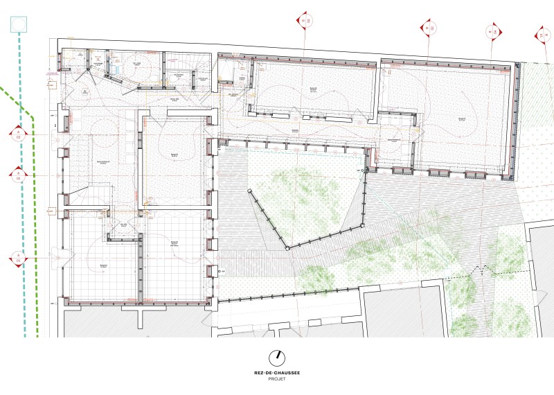
La Tribu Du Sujet est un lieu d’exercice commun pour une dizaine de praticiennes œuvrant en complémentarité pour l’accompagnement de leurs patients. Ce groupe dynamique, fort d’un développement prometteur et soutenu par la commune, se projette dans la rénovation et l’extension de son espace. La maison voisine est acquise par la nouvelle SCI et divisée en trois lots : la nouvelle tribu, un local commercial et un terrain à bâtir. Le projet est également l’occasion d’une mise en conformité vis-à-vis des règles d’accessibilité et de sécurité incendie pour les ERP.

Esquisser un village

Le projet est un exercice délicat de conciliation de la qualité d’usage des communs avec les contraintes d’efficacité de la circulation, de l’entretien des bureaux et des équipements et du respect du secret professionnel. La cour est restituée à sa destination et à son ouverture première par des démolitions ciblées des ouvrages parasites : cages à oiseaux, murs de clôture, véranda. Afin de préserver les vues et les apports solaires, ces communs sont mutualisés entre les trois lots avec une servitude de vue, de passage et d’accès. Néanmoins, une articulation subtile de clairevoies et de portails à galandage structure les vues et canalise les flux afin d’éviter toute perturbation des usages projetés.

Susciter la rencontre

Les communs sont restructurés pour accommoder de nouveaux usages. La salle d’attente du rez-de-chaussée s’élargit et s’ouvre sur un escalier spectaculaire, toute hauteur, desservant l’ensemble des niveaux de la maison paramédicale et autorisant son classement en ERP de 5e catégorie. La maison paramédicale est intégralement rénovée par une isolation biosourcée insufflée en vrac en caissons fermés en parois et rampants, incluant le remplacement de toutes les menuiseries et d’une nouvelle installation de chauffage, ventilation double-flux, électricité et eau chaude sanitaire.

  • MOA

    SCI TDS Fromelles

  • MOE

    HPAA - Architecte mandataire
    Ekkoïa - BE ENE

  • Programme

    La Tribu Du Sujet - 273.79 m²SU
    Local commercial - 155.92 m²SU
    Terrain à bâtir - 553.98 m²SU

  • Enveloppe

    Maison paramédicale - 400000 €TTC
    Local commercial - 400000 €TTC

  • Phase

    DET - 2026