M05 - Là-haut, rue Fleurie - VALENCIENNES (59)

Extension d’une habitation individuelle
22 rue Fleurie - 59300 Valenciennes

  • MOA

    Particulier

  • MOE

    HPAA - Architecte mandataire
    Fondasol - Géotechnique

  • Programme

    Extension - 60 m²SHAB

  • Enveloppe

    150000 €TTC

  • Phase

    Livré en 2025

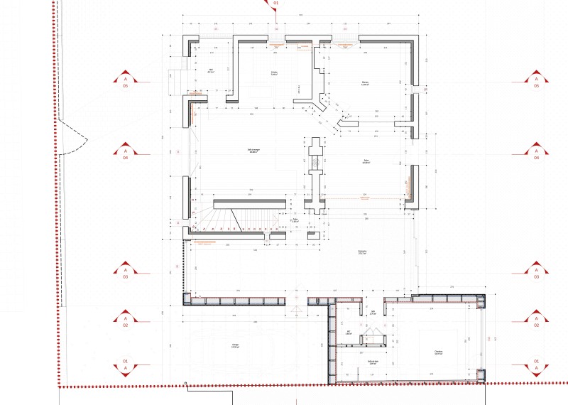
L’ancienne maison d’ingénieur du 22 Rue Fleurie est une habitation modeste, non mitoyenne, bien qu’assez confortable et spacieuse. Cette pièce urbaine s’inscrit dans un rang de quatre habitations de granulométrie similaire. La profondeur et la largeur de la parcelle permettent d’apprécier l’habitation avec une certaine distance, tant depuis le jardin que depuis la rue. Un frontage intimise les principaux espaces de vie et inscrit la maison dans un paysage urbain d’habitations de gabarit équivalent mais d’expression volumétrique et constructive très divers.

Une recomposition sensible

La composition architecturale repose sur un parti simple : la mobilisation de gestes, de volumétries et d’articulations fonctionnelles simples au profit de perspectives et d’expériences spatiales surprenantes et riches de sens vis-à-vis des usages projetés.

La composition se dessine comme l’articulation de trois pièces architecturales distinctes :

  • L’habitation existante
  • Une couverture de zinc laqué anthracite, venant englober un carport ainsi que le volume de l’escalier existant, suscitant des interactions entre l’ancienne façade et les nouveaux volumes.
  • L’extension proprement dite, à rez-de-chaussée, présentant un bardage à clairevoie de composition soignée. Le dessin de la charpente et le calepinage du bardage participent à l’équilibre esthétique.
  • MOA

    Particulier

  • MOE

    HPAA - Architecte mandataire
    Fondasol - Géotechnique

  • Programme

    Extension - 60 m²SHAB

  • Enveloppe

    150000 €TTC

  • Phase

    Livré en 2025